ニュース

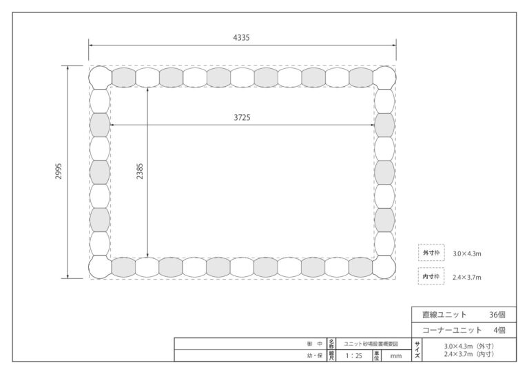
unit-3.0×4.3m

  • 2025.12.16