会社情報
ニュース
保育用品
学童保育用品
採用情報
パンフレット
図面
お問い合わせ
EN
Search for
ニュース
HOME
>
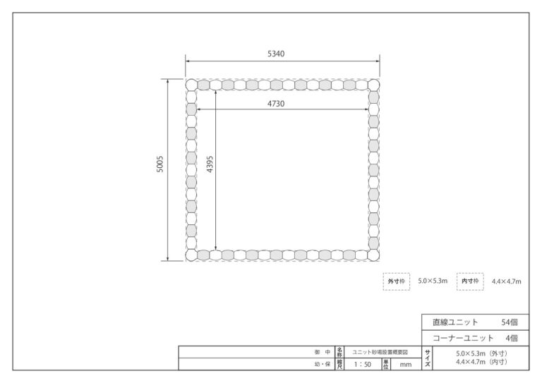
unit-5.0×5.3m
unit-5.0×5.3m
2025.12.16