ニュース

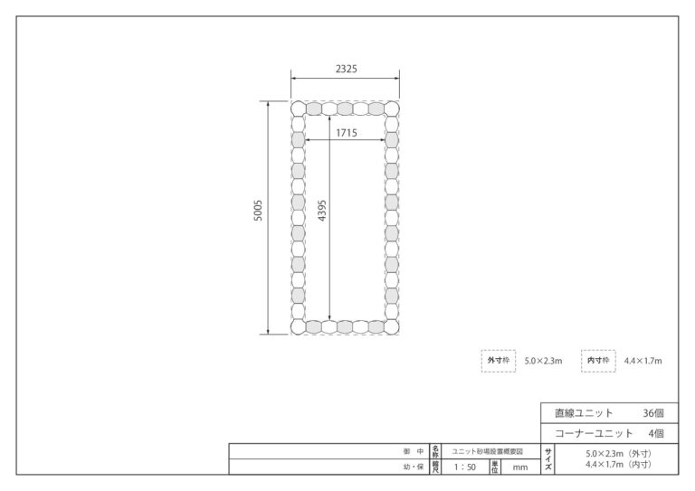
unit-5.0×2.3m

  • 2025.12.16