会社情報
ニュース
保育用品
学童保育用品
採用情報
パンフレット
図面
お問い合わせ
EN
Search for
ニュース
HOME
>
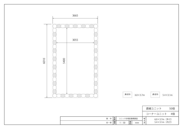
unit-6.0×3.7m
unit-6.0×3.7m
2025.12.16